悠居港式靚裝修套餐

Elegant Hong Kong Style Renovation Package

悠居設計團隊
專為海雅繽紛城業主度身訂造
港式裝修套餐,讓香港業主輕鬆坐收高回報

1小戶型:簡約實用 · 空間放大術

開放式佈局,一室多用。採用暖色調配搭,令細單位瞬間變得明亮舒適,極受年輕租客歡迎。

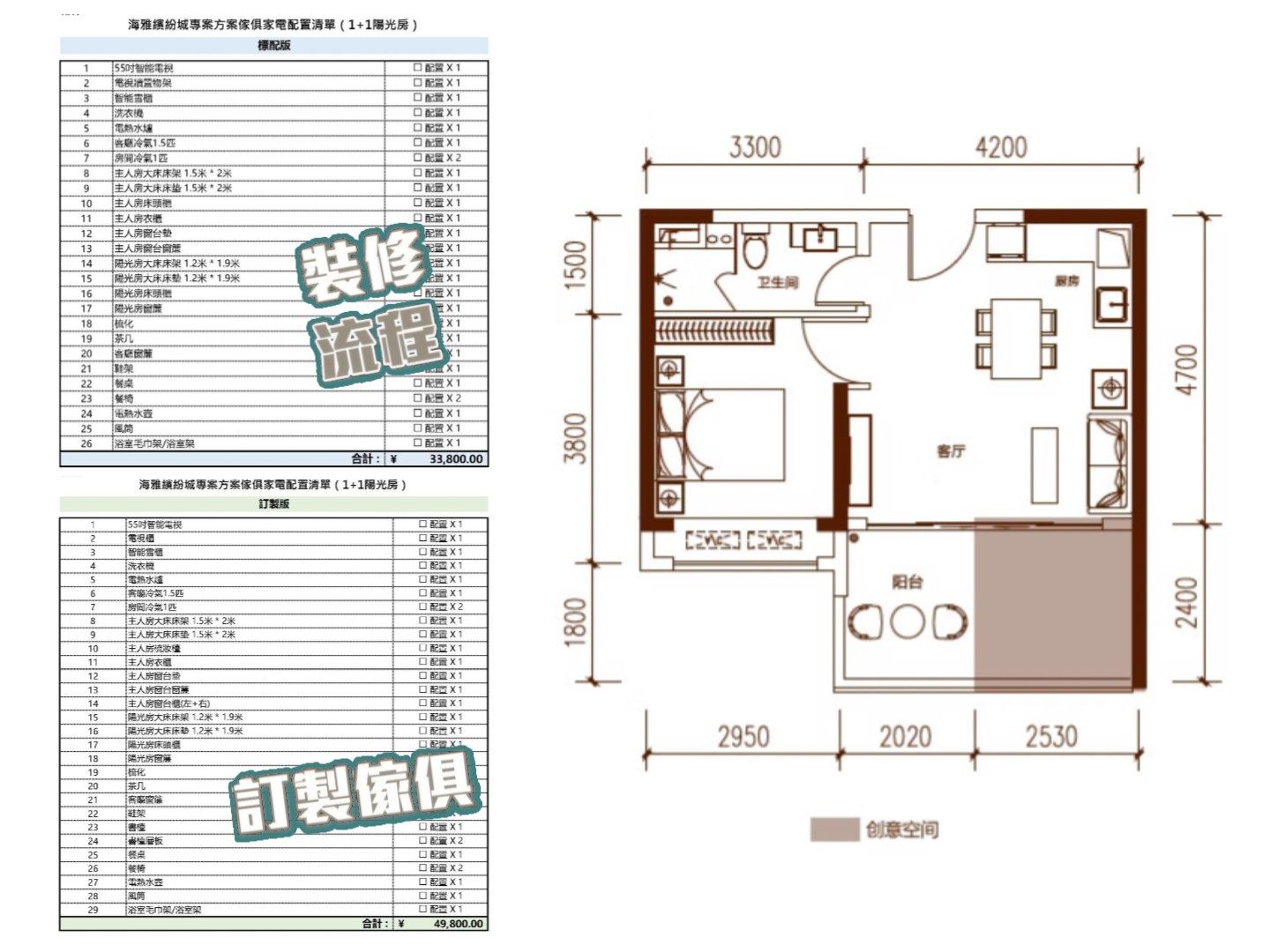
戶型實景展示

2中戶型:空間舒適 · 生活質感提升

52-56㎡ 一房方案
獨立臥室加陽光房設計,採光通透,兼具工作與休閒空間。適合小家庭 or 優質白領租客,出租穩定性極高。

戶型實景展示

全部一價包齊 (標準版 / 優選版)
裝修完成即刻入住或出租,無需再額外購置:

家電系列
雪櫃、洗衣機、抽油煙機、電視、熱水器、全屋冷氣

精選傢俬
客廳沙發 (布藝/皮革可選)、茶几、實用餐桌椅

全屋定制
入牆訂造衣櫃 (儲物充足)、舒適睡床 + 床頭櫃 + 全屋窗簾

★ 裝修完成即刻入住,即刻收租 ★